• Built with a powder-coated MS frame for strength and durability.
  • Made using all-weather, fire-retardant Tensile (760 GSM) or PVC (760 GSM) fabric.
  • Includes a middle-layer roof insulation for better temperature control.
  • Offers a life span of up to 10 years (Tensile) and 8 years (PVC).
  • Black-out fabric used for side walls to block sunlight and heat.
  • Anti-bacterial and fire-retardant polyester lining of approx. 270 GSM.
  • Fitted with mosquito mesh for ventilation and protection.
  • Bamboo roll-up flaps on inner windows add natural charm and privacy.
  • Self-supported structure with ropes, stoppers, and pegs for stability.
  • Provisions for split AC and doors for modern comfort.
  • Designed to be durable, fire-safe, and suitable for all weather conditions.
Tent Layout Image
12x24 Tent Floor Level Plan
12x24 Tent Electrical Layout
12x24 Tent Plumbing Layout
DetailsSize
Suggested Size14 ft x 28 ft
Corridor Size14 ft x 7 ft
Room Size14 ft x 14 ft
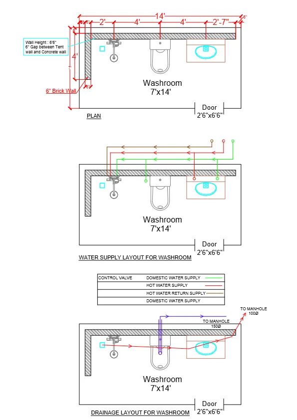
Washroom Size14 ft x 7 ft
Sidewall HeightApprox. 7 ft 6 Inch
Centre HeightApprox. 10 ft
No. of Windows5 in room + 1 in washroom
Outer RoofFire-Retardant & Antifungal PVC or Tensile of 760GSM
Inner RoofPlain/Printed Polyester cloth
Outer Side WallFire-retardant and Antifungal Polyester Fabric of 270 GSM
Inner Side WallPlain/Printed Polyester cloth
Window Roll-upYes
Wooden StoppersYes
MakePowder Coated Iron Structure
Kindly noteCovered Corridor with two windows in front & One on each Side
Tent Layout Image
12x24 Tent Floor Level Plan
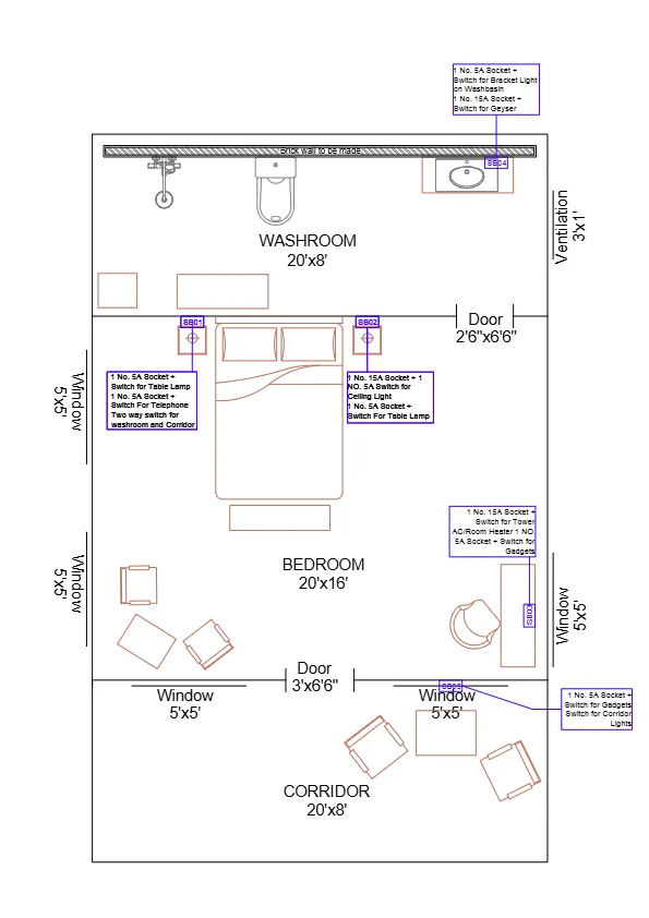
12x24 Tent Electrical Layout
12x24 Tent Plumbing Layout
DetailsSize
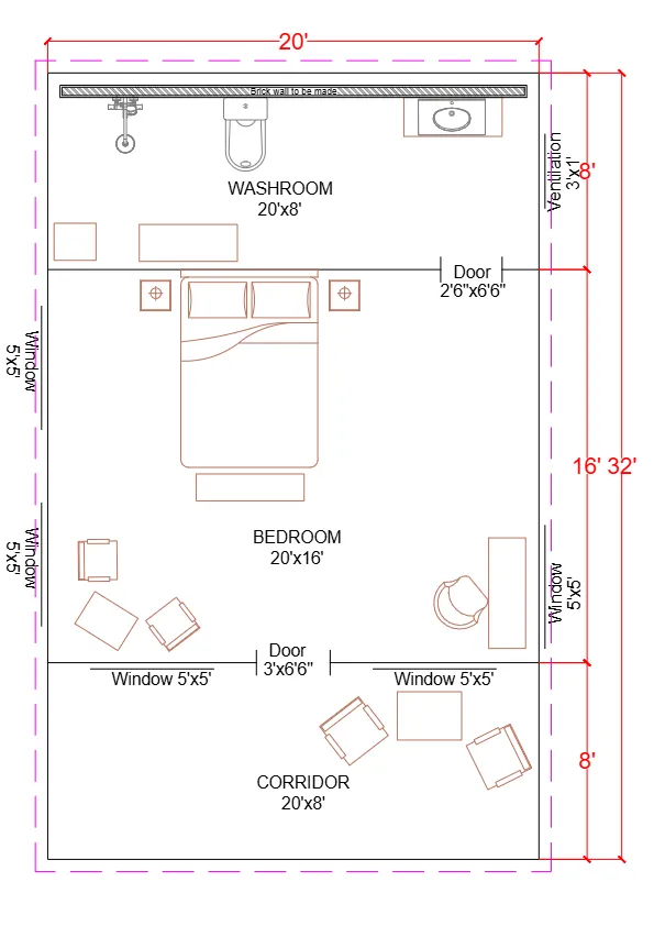
Suggested Size16 ft x 32 ft
Corridor Size16 ft x 8 ft
Room Size16 ft x 16 ft
Washroom Size16 ft x 8 ft
Sidewall HeightApprox. 7 ft 6 Inch
Centre HeightApprox. 10 ft
No. of Windows5 in room + 1 in washroom
Outer RoofFire-Retardant & Antifungal PVC or Tensile of 760GSM
Inner RoofPlain/Printed Polyester cloth
Outer Side WallFire-retardant and Antifungal Polyester Fabric of 270 GSM
Inner Side WallPlain/Printed Polyester cloth
Window Roll-upYes
Wooden StoppersYes
MakePowder Coated Iron Structure
Kindly noteCovered Corridor with two windows in front & one on each Sides
Tent Layout Image
12x24 Tent Floor Level Plan
12x24 Tent Electrical Layout
12x24 Tent Plumbing Layout
DetailsSize
Suggested Size20 ft x 32 ft
Corridor Size20 ft x 8 ft
Room Size20 ft x 16 ft
Washroom Size20 ft x 8 ft
Sidewall HeightApprox. 7ft 6 Inch
Centre HeightApprox. 10 ft
No. of Windows5 in room + 1 in washroom
Outer RoofFire-Retardant & Antifungal PVC or Tensile of 760GSM
Inner RoofPlain/Printed Polyester cloth
Outer Side WallFire-retardant and Antifungal Polyester Fabric of 270 GSM
Inner Side WallPlain/Printed Polyester cloth
Window Roll-upYes
Wooden StoppersYes
MakePowder Coated Iron Structure
Kindly noteCovered Corridor with two windows in front & one on each Sides
location
how to find us?
call us book a tent & delivery:

196, UMAID HERITAGE JODHPUR-342001

info@anglesanddesigns.com

Mon - Sat : 9.00am - 5.00pm, Sunday : Close

GET DIRECTIONS
Contact Us
  • LOCATION:
    196, UMAID HERITAGE JODHPUR-342001
  • BOOK A Tent:
    info@anglesanddesigns.com
    +91-97832 71001
Newletters & Event
Register your email to not miss any news and offers from us!