LOCATION
196, Umaid Heritage, Jodhpur, Rajasthan 342001
+91-97832 71001




| Details | Size |
|---|---|
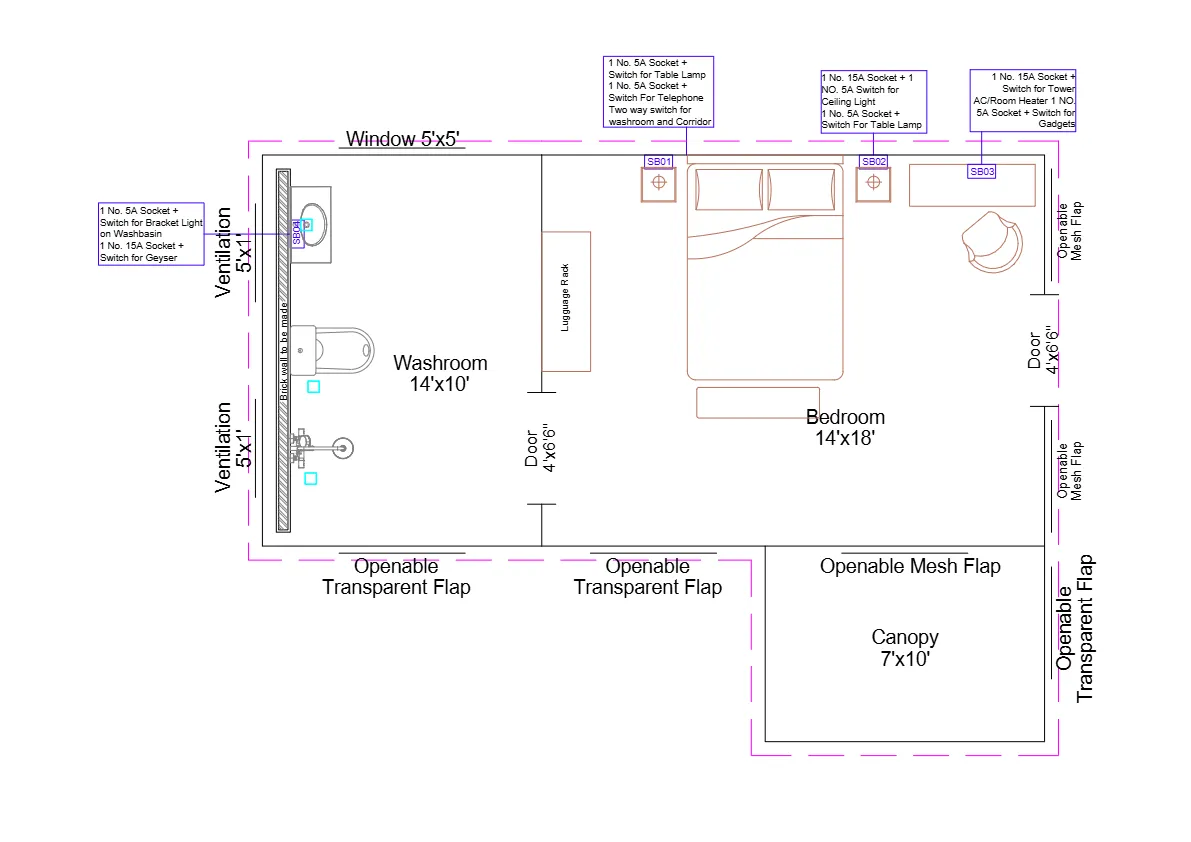
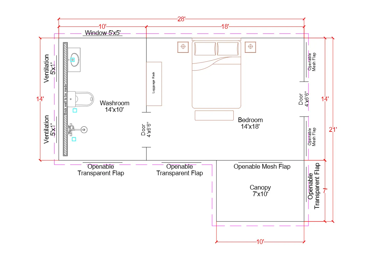
| Suggested Size | 14 ft x 28 ft |
| Corridor Size | 8 ft x 6 ft |
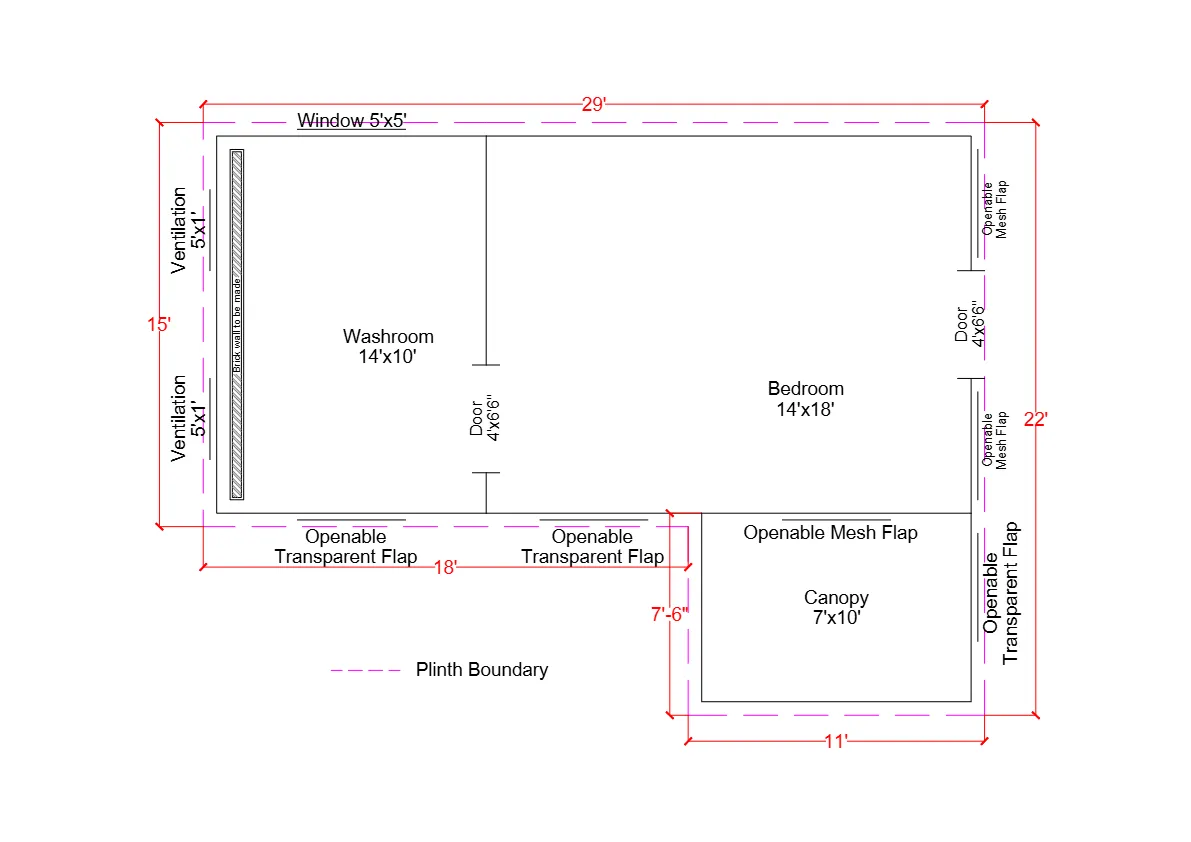
| Room Size | 14 ft x 18 ft |
| Washroom Size | 14 ft x 10 ft |
| Sidewall Height | Approx. 8 ft |
| Centre Height | Approx. 11 ft |
| No. of Windows | 5 in room + 1 in washroom |
| Outer Roof | Fire-Retardant & Antifungal PVC and Tensile of 760GSM |
| Inner Roof | Plain/Printed Polyester cloth |
| Outer Side Wall | Fire-retardant and Antifungal Polyester Fabric of 270 GSM |
| Inner Side Wall | Plain/Printed Polyester cloth |
| Window Roll-up | Yes |
| Wooden Stoppers | Yes |
| Make | Powder Coated Iron Structure |
| Kindly note | Covered Corridor with two windows in front & One on each Side |




| Details | Size |
|---|---|
| Suggested Size | 16 ft x 29 ft |
| Corridor Size | 16 ft x 5 ft |
| Room Size | 16 ft x 16 ft |
| Washroom Size | 16 ft x 8 ft |
| Sidewall Height | Approx. 8 ft |
| Centre Height | Approx. 11 ft |
| No. of Windows | 4 in room + 1 in washroom |
| Outer Roof | Fire-Retardant & Antifungal PVC or Tensile of 760GSM |
| Inner Roof | Plain/Printed Polyester cloth |
| Outer Side Wall | Fire-retardant and Antifungal Polyester Fabric of 270 GSM |
| Inner Side Wall | Plain/Printed Polyester cloth |
| Window Roll-up | Yes |
| Wooden Stoppers | Yes |
| Make | Powder Coated Iron Structure |
| Kindly note | Covered Corridor with two windows in front & one on each Sides |




| Suggested Size |
| 24 ft x 24 ft |
| 26 ft x 26 ft |
| 28 ft x 28 ft |
| 30 ft x 30 ft |
| 32 ft x 32 ft |
| 34 ft x 34 ft |
| 36 ft x 36 ft |
196, UMAID HERITAGE JODHPUR-342001
Mon - Sat : 9.00am - 5.00pm, Sunday : Close
GET DIRECTIONS